Te koop Middle Floor Apartment Costa Del Sol Higueron € 759.000,-

Higueron

Vanaf € 759.000,-

BESCHRIJVING

Ervaar het verfijnde leven aan de kust in dit gloednieuwe luxe appartement, gelegen in het prestigieuze Higuerón Resort. Deze luxe woning is ontworpen met een strakke, eigentijdse esthetiek en biedt een elegante open indeling waarbij de woon- en keukenruimte naadloos in elkaar overlopen – een perfecte balans tussen comfort en verfijning. De ramen van vloer tot plafond laten een zee van natuurlijk licht binnen en bieden een adembenemend panoramisch uitzicht, waardoor een naadloze verbinding ontstaat tussen het binnenleven en het omringende landschap. Het interieur is afgewerkt volgens de hoogste normen, met eersteklas materialen, stijlvolle details en een moderne, minimalistische uitstraling. Het appartement beschikt over 2 slaapkamers en 2 badkamers en wordt volledig gemeubileerd verkocht zoals te zien op de foto's, waardoor u er direct kunt intrekken – u hoeft alleen maar aan te komen en te genieten. Bewoners profiteren van prachtig onderhouden gemeenschappelijke ruimtes, waaronder een schitterend zwembad in een aangelegde tuin, een sauna en een co-workingruimte, evenals 24-uursbeveiliging voor volledige gemoedsrust. De woning beschikt over twee eigen parkeerplaatsen, een laadpunt voor elektrische voertuigen en een beveiligde berging. Gelegen in het exclusieve Higuerón Resort, heeft u toegang tot een breed scala aan eersteklas voorzieningen, waaronder een luxe spa, een ultramodern fitnesscentrum, uitstekende restaurants, een strandclub en sportfaciliteiten. Het resort staat bekend om zijn rustige omgeving, privacy en uitzonderlijke levensstijl. Op slechts een steenworp afstand van het strand combineert dit appartement perfect het serene leven in een resort met gemakkelijke toegang tot de kust, waardoor het een ideale keuze is voor zowel een permanente woning als een elegant vakantieverblijf. Welkom!

Responsive image
0m²
Responsive image
2
Responsive image
2
Responsive image
yes
Responsive image
0m²
Responsive image
2
Responsive image
2
Responsive image
yes

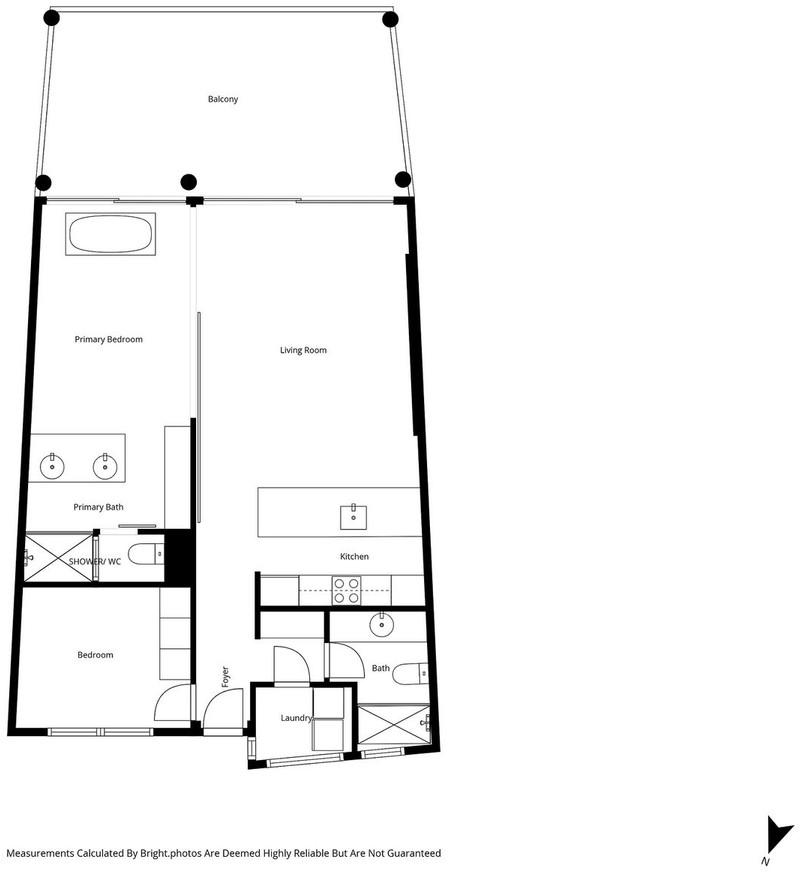
Slaapkamers: 2

Badkamers: 2

Woonoppervlak: 0m²

Leefruimte: 117m²

Zwembad: yes

Tuin: yes

Parking: yes

Cooling:

Opslagruimte:

Lift:

Bouwjaar: 2025

Verdieping: Ja

GEBIED
Omgeving: Dichtbij golf, Dichtbij haven, Dichtbij winkels, Dichtbij zee, Dichtbij stad, Dichtbij scholen Orientatie: Zuid Staat: Uitstekend, Nieuwbouw Zwembad: gemeenschappelijk Klimaatregeling: airconditioning Uitzicht: zee, zwembad Kenmerken: Overdekt terras, Lift, Inbouwkasten, Nabij openbaar vervoer, Sauna, Berging, Badkamer en suite Meubels: volledig gemeubileerd Keuken: volledig ingericht Tuin: Gemeenschappelijk Beveiliging: Gated Complex, 24-uurs beveiliging Parkeergarage

AANVRAAG MEER INFORMATIE

Vul het onderstaande formulier in om meer informatie over deze nieuwe ontwikkeling te ontvangen. (* zijn verplichte velden)

U kunt ook contact opnemen met het kantoor via e-mail or phone:
+34 952 830 378 / +34 677 670 480

STUUR ONS EEN BERICHTJE


Vergeet niet om akkoord te gaan met ons privacy beleid



Alternatieven

[alt]

Te koop Penthouse Costa Del Sol Estepona € 755.000,-

Prijs € 755.000,-

Meer informatie
[alt]

Te koop Penthouse Costa Del Sol Estepona € 782.700,-

Prijs € 782.700,-

Meer informatie
[alt]

Te koop Appartement Costa Del Sol Fuengirola € 695.000,-

Prijs € 695.000,-

Meer informatie
[alt]

Te koop Appartement Costa Del Sol San Pedro De Alcántara € 845.000,-

Prijs € 845.000,-

Meer informatie

Nieuwbouw Spanje maakt gebruik van cookies. Klik hier voor meer informatie. Sluit
x