Te koop Vrijstaande Villa Costa Del Sol Bel Air € 2.850.000,-

Bel Air

Vanaf € 2.850.000,-

BESCHRIJVING

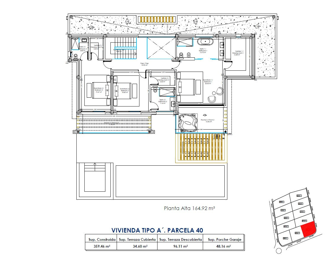
This contemporary villa is located in the established residential area of Bel Air, on the New Golden Mile, offering a practical layout, generous outdoor space, and a convenient location close to golf courses, beaches, and all essential services. The property is built on a private plot of 1,044.54 m² and offers a total built area of 543.38 m², including 359.46 m² of interior living space. The villa comprises 5 bedrooms and 4.5 bathrooms, making it suitable for both family use and hosting guests. The layout is designed to provide a clear separation between living and sleeping areas, ensuring functionality and privacy. The main floor features an open-plan living and dining area connected to the kitchen, with direct access to the outdoor spaces through large sliding glass doors. This allows for good natural light and easy access to terraces and garden areas. Outdoor spaces include 101.16 m² of open terraces and 34.60 m² of covered terraces, offering a combination of sun-exposed and shaded areas throughout the day. The private swimming pool, measuring 42.53 m², is positioned within the garden and is easily accessible from the main living areas. The kitchen is integrated into the main living space, providing a functional layout with sufficient storage and workspace, suitable for both everyday use and entertaining. The property also includes a 48.16 m² private garage, along with additional technical features such as underfloor heating, air-conditioning, and home automation systems, ensuring year-round comfort and efficient energy use. Overall, this villa offers a balanced combination of space, functionality, and location, making it a solid option for both permanent living and investment on the Costa del Sol.

Responsive image
1044m²
Responsive image
5
Responsive image
5
Responsive image
yes
Responsive image
1044m²
Responsive image
5
Responsive image
5
Responsive image
yes

Slaapkamers: 5

Badkamers: 5

Woonoppervlak: 1044m²

Leefruimte: 359m²

Zwembad: yes

Tuin: yes

Parking: yes

Cooling:

Opslagruimte:

Lift:

Bouwjaar: 2026

Verdieping: Ja

GEBIED
Setting: Close To Golf, Close To Shops, Close To Sea, Close To Town, Urbanisation Orientation: South Condition: Excellent, New Construction Pool: Private Climate Control: Air Conditioning, Fireplace, U/F Heating Views: Country, Pool Features: Covered Terrace, Fitted Wardrobes, Private Terrace, Storage Room, Double Glazing, Domotics Furniture: Not Furnished Kitchen: Partially Fitted, Kitchen-Lounge Garden: Private Security: Electric Blinds, Entry Phone Parking: More Than One, Private

AANVRAAG MEER INFORMATIE

Vul het onderstaande formulier in om meer informatie over deze nieuwe ontwikkeling te ontvangen. (* zijn verplichte velden)

U kunt ook contact opnemen met het kantoor via e-mail or phone:
+34 952 830 378 / +34 677 670 480

STUUR ONS EEN BERICHTJE


Vergeet niet om akkoord te gaan met ons privacy beleid



Alternatieven

[alt]

Te koop Villa Costa Del Sol Marbella € 2.850.000,-

Prijs € 2.850.000,-

Meer informatie
[alt]

Te koop Vrijstaande Villa Costa Del Sol Sotogrande Costa € 2.850.000,-

Prijs € 2.850.000,-

Meer informatie
[alt]

Te koop Vrijstaande Villa Costa Del Sol El Paraiso € 2.850.000,-

Prijs € 2.850.000,-

Meer informatie
[alt]

Te koop Vrijstaande Villa Costa Del Sol Marbella € 2.850.000,-

Prijs € 2.850.000,-

Meer informatie

Nieuwbouw Spanje maakt gebruik van cookies. Klik hier voor meer informatie. Sluit
x