Te koop Gelijkvloers appartement Costa Del Sol Estepona € 365.000,-

Estepona

Vanaf € 365.000,-

BESCHRIJVING

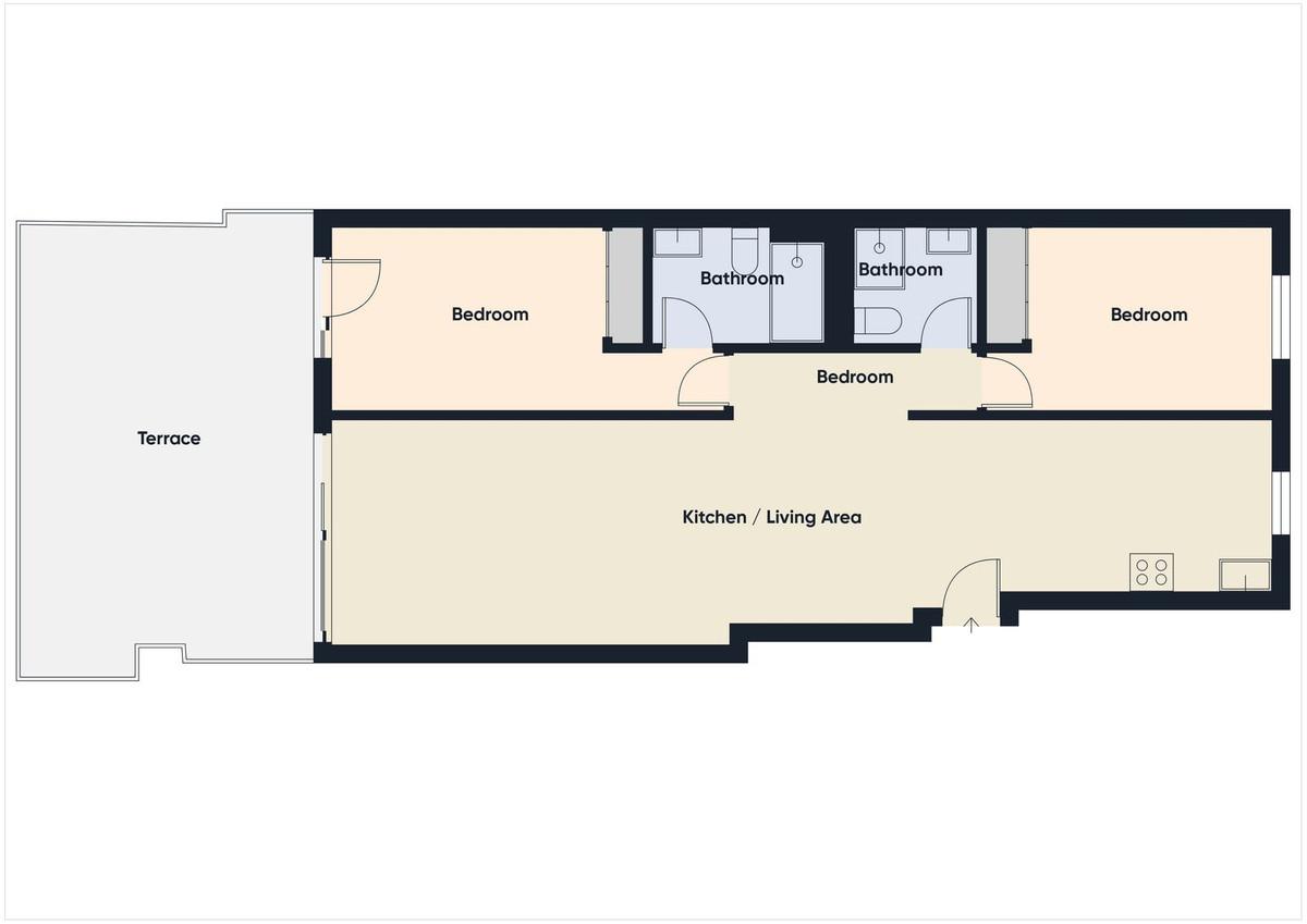
Modern 2-Bedroom Ground Floor Apartment – Sunny Golf, Estepona Located within the newly completed Sunny Golf development in Estepona, this 2-bedroom, 2-bathroom ground floor apartment combines contemporary design with the relaxed Andalusian lifestyle. Set in a secure gated community surrounded by golf courses and natural beauty, the property offers a peaceful yet well-connected location just a short drive from beaches, shops, and the vibrant heart of Estepona town. Completed in 2024, the apartment enjoys a bright and spacious open-plan layout, featuring a generous living and dining area that flows seamlessly onto a private terrace with garden and mountain views. With its southwest orientation, the property benefits from sunshine throughout the afternoon and spectacular sunsets over the surrounding hills. Key features include: 2 spacious bedrooms and 2 modern bathrooms Open-plan kitchen and living area with abundant natural light Private terrace ideal for outdoor dining and relaxation Communal swimming pool set within beautifully landscaped gardens overlooking the golf course Secure gated community with modern infrastructure and contemporary design Designated parking space included Perfect as a holiday home, permanent residence, or investment property, this stylish apartment offers all the comforts of modern living within a quiet and well-maintained community. With its desirable orientation, peaceful views, and brand-new construction, this property represents an excellent opportunity to enjoy modern Mediterranean living in one of Estepona’s most up-and-coming residential areas. Book a viewing now, keys are in office.

Responsive image
0m²
Responsive image
2
Responsive image
2
Responsive image
yes
Responsive image
0m²
Responsive image
2
Responsive image
2
Responsive image
yes

Slaapkamers: 2

Badkamers: 2

Woonoppervlak: 0m²

Leefruimte: 72m²

Zwembad: yes

Tuin: yes

Parking: no

Cooling:

Opslagruimte:

Lift:

Bouwjaar: 2024

Verdieping: Ja

GEBIED
Setting: Urbanisation Orientation: South, South West Condition: Excellent Pool: Communal Climate Control: Air Conditioning, Central Heating Views: Mountain, Golf, Garden Features: Covered Terrace, Lift, Fitted Wardrobes, Double Glazing Kitchen: Fully Fitted Garden: Communal Security: Gated Complex Utilities: Electricity Category: Golf, Holiday Homes, Investment, Resale

AANVRAAG MEER INFORMATIE

Vul het onderstaande formulier in om meer informatie over deze nieuwe ontwikkeling te ontvangen. (* zijn verplichte velden)

U kunt ook contact opnemen met het kantoor via e-mail or phone:
+34 952 830 378 / +34 677 670 480

STUUR ONS EEN BERICHTJE


Vergeet niet om akkoord te gaan met ons privacy beleid



Alternatieven

[alt]

Te koop Appartement Costa Del Sol Estepona Centro € 395.000,-

Prijs € 395.000,-

Meer informatie
[alt]

Te koop Appartement Costa Del Sol Estepona € 375.000,-

Prijs € 375.000,-

Meer informatie
[alt]

Te koop Appartement Costa Del Sol Estepona € 390.000,-

Prijs € 390.000,-

Meer informatie
[alt]

Te koop Appartement Costa Del Sol Torre Del Mar € 380.000,-

Prijs € 380.000,-

Meer informatie

Nieuwbouw Spanje maakt gebruik van cookies. Klik hier voor meer informatie. Sluit
x