Te koop Gelijkvloers appartement Costa Del Sol Fuengirola € 475.000,-

Fuengirola

Vanaf € 475.000,-

BESCHRIJVING

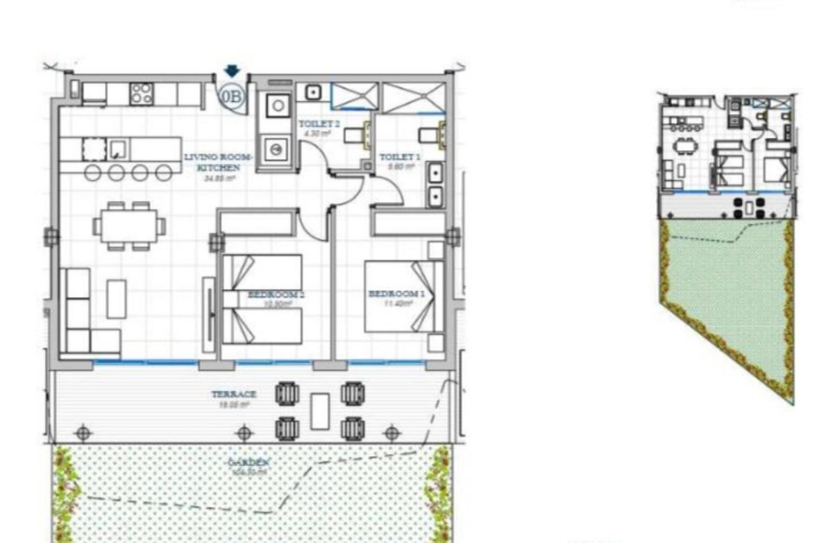
Yes! In this community holiday rentals are allowed. Lomas de Higuerón; Located in a quiet and easily accessible residential area, this charming newly built property is the ideal home for those seeking comfort, style, and outdoor space. With a modern and functional design, this two-bedroom house comes with a large private garden, perfect for family activities or relaxing moments. Key Features: Bedrooms: The property features two spacious and bright bedrooms, with enough space for double or single beds, built-in wardrobes, and windows that allow natural light to enter throughout the day. The master bedroom overlooks the garden, creating a peaceful and relaxing atmosphere. Kitchen and Living Room: The kitchen is modern and open, with high-quality appliances, easy-care countertops, and plenty of storage space. The open-plan living room connects directly to the dining room, creating a perfect setting for family gatherings or gatherings with friends. From the living room, there is direct access to the garden, allowing you to enjoy the views and the outdoors.

Responsive image
0m²
Responsive image
2
Responsive image
2
Responsive image
yes
Responsive image
0m²
Responsive image
2
Responsive image
2
Responsive image
yes

Slaapkamers: 2

Badkamers: 2

Woonoppervlak: 0m²

Leefruimte: 85m²

Zwembad: yes

Tuin: yes

Parking: yes

Cooling:

Opslagruimte:

Lift:

Bouwjaar: 2025

Verdieping: Ja

GEBIED
Setting: Close To Sea, Close To Town, Urbanisation Orientation: South West Condition: New Construction Pool: Communal Climate Control: Air Conditioning Views: Sea, Garden Features: Covered Terrace, Lift, Fitted Wardrobes, Private Terrace, Storage Room, Double Glazing Furniture: Not Furnished Kitchen: Fully Fitted Garden: Private Security: Electric Blinds Parking: Underground Category: Holiday Homes, Luxury, Contemporary

AANVRAAG MEER INFORMATIE

Vul het onderstaande formulier in om meer informatie over deze nieuwe ontwikkeling te ontvangen. (* zijn verplichte velden)

U kunt ook contact opnemen met het kantoor via e-mail or phone:
+34 952 830 378 / +34 677 670 480

STUUR ONS EEN BERICHTJE


Vergeet niet om akkoord te gaan met ons privacy beleid



Alternatieven

[alt]

Te koop Appartement Costa Del Sol Mijas Costa € 399.000,-

Prijs € 399.000,-

Meer informatie
[alt]

Te koop Appartement Costa Del Sol Mijas Costa € 400.000,-

Prijs € 400.000,-

Meer informatie
[alt]

Te koop Appartement Costa Del Sol Estepona € 535.000,-

Prijs € 535.000,-

Meer informatie
[alt]

Te koop Appartement Costa Del Sol San Pedro De Alcántara € 464.000,-

Prijs € 464.000,-

Meer informatie

Nieuwbouw Spanje maakt gebruik van cookies. Klik hier voor meer informatie. Sluit
x