Te koop Vrijstaande Villa Costa Del Sol Benahavís € 3.695.000,-

Benahavís

Vanaf € 3.695.000,-

BESCHRIJVING

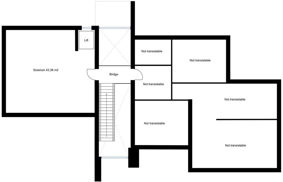
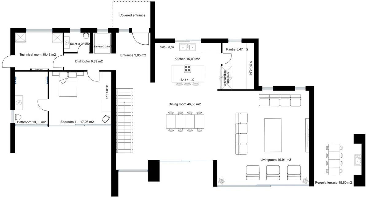
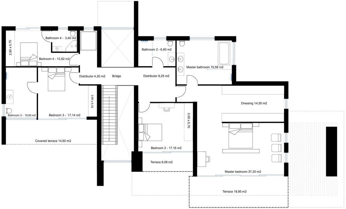
OFF-PLAN ECOLOGICAL CONTEMPORARY VILLA - KEY-IN-HAND in Monte Mayor with views over the green valley, this property has it all, this will be a true jewel for those who love space, luxury, and quality! This luxury villa will be built on a plot of 7.250,00 m2 and consist out of 3 floors, all materials like the kitchen, floors, and bathroom walls will be from the well-renowned Grespania company. Ground floor: Pergola carport port with motorized entrance gate, entrance hall with double height ceiling, elevator, a distributor which leads to the guest toilet, technical room, and a bedroom with a big en-suite bathroom and private terrace. Furthermore, on this floor, you have a huge dining room with a tailor-made open-plan kitchen fully equipped with Bosch appliances, a pantry and a big living room. Both, the dining room and living room give out to the huge, covered terraces, and for those who love swimming or splashing a huge 80 m2 pool with a kid’s pool, water-featured bronzing area, and a chill-out. There is pavement around the full villa to make access to the different parts of the garden and villa easy. The garden will be easy to maintain and fully fenced with a 2-meter-high galvanized strong fence. First floor: The staircase or elevator leads you to a landing that divides the first floor into 2 parts. On one side you have 2 bedrooms each with an en-suite bathroom and one of the bedrooms has a private terrace. On the other side, you have a bedroom with a bathroom and a private terrace. And of course, on this floor, you have the master bedroom with a huge dressing, en-suite bathroom, and a big terrace. Basement/Garage: The garage has space for 4 big cars, furthermore you have the technical pool room, a toilet, and the car elevator. The storage room could be converted into a games room or cinema room Solarium of 45 m2 surrounded with glass to give you privacy PICTURES OF KITCHENS AND BATHROOMS ARE JUST EXAMPLES, THE FINAL CHOICE WILL BE THAT FROM THE CLIENT! Example of some of the specifications, - Interior and exterior floor tiles from GRESPANIA 600x600 – 800x800 - 1200x1200 (Color and size to choose) - Bathroom walls with COVERLAM plates (GRESPANIA) 2700X1200 (Color to choose) - Bathrooms from ROCA – DURAVIT – VILLEROY BOCH – GEBERIT – HANSGROHE OR SIMILAR - Aerothermia/airconditioning - Elevator from Schindler or similar - Underfloor heating in the full villa - Ceiling high windows with a sunken track, 5+5/chamber/4+4 - Ceiling high and 1-meter wide interior doors - Fully fitted kitchen with aluminum frame doors and covered with COVERLAM (Color to choose) - Island with COVERLAM 3600X1600 no visible joints (Color to choose) - White goods from Bosch or AEG - Heated pool - 30 solar panels - 3 lithium batteries of each 10kW - Car charger - Domotica - Car elevator We are a construction company, Key-in-Hand, that can design and construct any possibility you can think of. If you do not see a design of us that you like we design a totally new villa for you according to your ideas and input. Although we prefer to construct ecological building, we can construct from traditional construction to ecological constructions it all depends on you.

Responsive image
7250m²
Responsive image
5
Responsive image
7
Responsive image
yes
Responsive image
7250m²
Responsive image
5
Responsive image
7
Responsive image
yes

Slaapkamers: 5

Badkamers: 7

Woonoppervlak: 7250m²

Leefruimte: 632m²

Zwembad: yes

Tuin: yes

Parking: yes

Cooling:

Opslagruimte:

Lift:

Bouwjaar: 2025

Verdieping: Ja

GEBIED
Setting: Mountain Pueblo, Close To Golf, Close To Forest, Urbanisation Orientation: East, South East, South, South West, West Condition: New Construction Pool: Private, Children`s Pool Climate Control: Air Conditioning, Hot A/C, Cold A/C, Fireplace, U/F Heating, U/F/H Bathrooms Views: Mountain, Country, Panoramic, Garden, Pool, Forest Features: Covered Terrace, Lift, Fitted Wardrobes, Private Terrace, Solarium, Gym, Games Room, Tennis Court, Storage Room, Utility Room, Ensuite Bathroom, Access for people with reduced mobility, Jacuzzi, Barbeque, Double Glazing, Restaurant On Site, Basement, Fiber Optic Furniture: Optional Kitchen: Fully Fitted Garden: Private, Easy Maintenance Security: Electric Blinds, Entry Phone, Alarm System, 24 Hour Security, Safe Parking: Underground, Garage, Covered, Open, More Than One, Private Utilities: Electricity, Drinkable Water, Telephone, Photovoltaic solar panels, Solar water heating Category: Golf, Investment, Luxury, Off Plan, Contemporary

AANVRAAG MEER INFORMATIE

Vul het onderstaande formulier in om meer informatie over deze nieuwe ontwikkeling te ontvangen. (* zijn verplichte velden)

U kunt ook contact opnemen met het kantoor via e-mail or phone:
+34 952 830 378 / +34 677 670 480

STUUR ONS EEN BERICHTJE


Vergeet niet om akkoord te gaan met ons privacy beleid



Alternatieven

[alt]

Te koop Vrijstaande Villa Costa Del Sol El Faro € 3.675.000,-

Prijs € 3.675.000,-

Meer informatie
[alt]

Te koop Vrijstaande Villa Costa Del Sol Benahavís € 3.695.000,-

Prijs € 3.695.000,-

Meer informatie
[alt]

Te koop Vrijstaande Villa Costa Del Sol El Paraiso € 3.749.500,-

Prijs € 3.749.500,-

Meer informatie
[alt]

Te koop Vrijstaande Villa Costa Del Sol Sotogrande Alto € 3.795.000,-

Prijs € 3.795.000,-

Meer informatie

Nieuwbouw Spanje maakt gebruik van cookies. Klik hier voor meer informatie. Sluit
x